1
/
of
7
Share
Hydraulic Patch For Glass Door (Heavy Duty) - Stainless
Hydraulic Patch For Glass Door (Heavy Duty) - Stainless
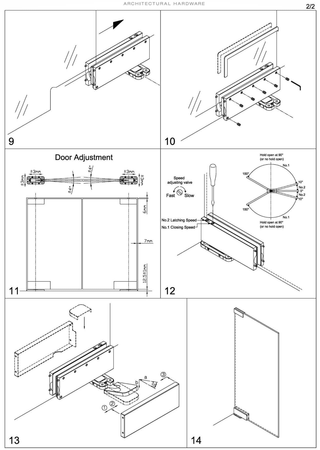
Hydraulic Patch For Glass Door (Heavy Duty) - StainlessThe SSS Grade 304 Glass Door Patch Closer - ensures gentle and controlled closing for internal toughened glass doors. Engineered for versatile mounting at the door’s base and floor with a robust top fix to wall or chanel pin, it offers an ideal alternative to conventional floor springs, particularly in scenarios involving underfloor heating or mechanical systems as no floor digging is required. Its compact base design streamlines glass look and appeal keeping ironmongery to a minimum.
Hydraulic Patch For Glass Door - Stainless Features
- Removeble SSS steel 304 pin type dust covers.
- EN-1154 compliant classification.
- Maximum door load weight 100kg.
- Maxium door width 1000mm.
- Maximum door leaf height 2700 mm ( 900 mm width ).
- Glass door thickness gaskets 10 to 12mm.
- Maximum door opening 150° & controlled to 135°
- Dual swing action - swings both ways.
- Two speed adjustment closing with a screwdriver.
- Cycle tested to 500,000 openings.
- Alignment adjustment positioning +3 mm in four directions
- Color: SSS stainless steel brushed & BLK black options
- Type: glass door hydraulic self closing closer.
- Simular to Ozone OCFH 100 or Rutland GP3 type closers
- Patch Fittings >>>
Closer Dimensions

- Expert Advice
- Speedy Packing
- Same Day Dispatch
14 in stock
Quantity
Regular price
£95.99
Regular price
£0.00
Sale price
£95.99
Shipping calculated at checkout.
Couldn't load pickup availability
