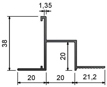
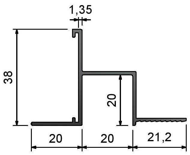
JTA20-Type Suspended Ceiling Junction 20mm Shadow Gap Trims
JTA20-Type Suspended Ceiling Junction 20mm Shadow Gap Trims
Maximize the potential of your project with JT-Type Suspended Ceiling Junction Shadow Gap Trims, designed for a variety of ceiling designs and junctions. These versatile trims are perfect for use with Mineral Fibre ( MF Ceiling ) & Metal ceiling tiles, plasterboard false ceilings, and partition walls. With the option for stepped shadow gap reveals, you can customize your choice to fit your specific needs with expert precision and efficiency.
Specification
- Horizontal use ceiling trim details.
- Supplied in standard 3000mm lengths.
-
Stock RAL colour white 9010.
- Durable powder coat finish.
- Extruded from architectural grade aluminium alloy to BS1474.
- Extruded from T6 internal grade aluminium.
- Other colours on request please email.
- Mitre cut on site.
- Cleating options.
- Ceiling profile range
Ceiling Junction Trim Dimensions

Junction Trim Example

- Expert Advice
- Speedy Packing
- Same Day Dispatch
100 in stock
Regular price
£25.99 GBP
Regular price
Sale price
£25.99 GBP
Unit price
per
Shipping calculated at checkout.
Couldn't load pickup availability
