Share
SA15-Type Suspended Ceiling Tile 15mm Reveal Trims
SA15-Type Suspended Ceiling Tile 15mm Reveal Trims
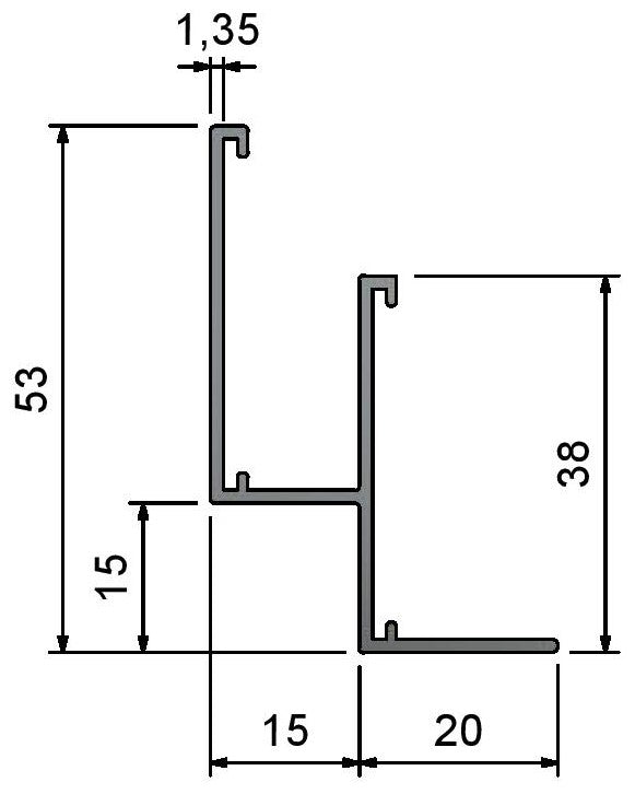
The SA15-Type Suspended Ceiling Tile Reveal Trims act as a seamless connection between drylining plasterboard and commonly used suspended ceiling tiles and grids. These metal trims can be paired with standard perimeter angle finishes for mineral fibre ceiling tiles, adding a refined touch to lighting and producing a sleek shadow gap reveal detail.
Both options have proven to significantly improve the quality of construction work. Made of architectural grade aluminium alloy conforming to BS1474, these ceiling trims are available in 3000mm lengths. Pre-punched with diagonal fixing slots and holes in the plastering fin, they can be easily secured with drywall screws. The standard finishes include white polyester powder coating with 20% gloss to RAL 9010
Suspended Ceiling Trim Specification
- Supplied in standard 3000mm lengths
-
Standard RAL colour of 9010
- Extruded from architectural grade aluminium alloy to BS1474
- Extruded from T6 internal grade aluminium
- Other colors on request please email.
- Other ceiling trims range
Ceiling Trim Example

Ceiling Trim Dimensions Guide

- Expert Advice
- Speedy Packing
- Same Day Dispatch
40 in stock
Couldn't load pickup availability
