UA35-Type Bulkhead Ceiling Up Stand Trims
UA35-Type Bulkhead Ceiling Up Stand Trims
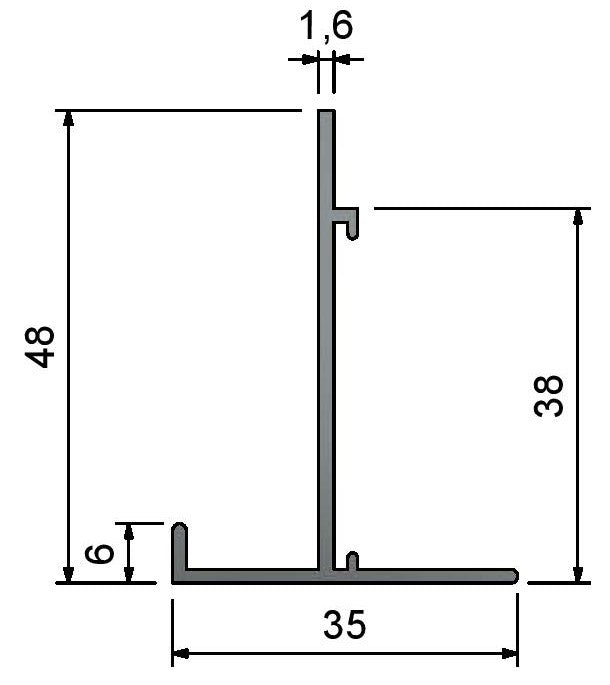
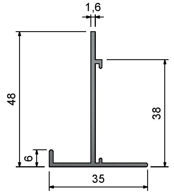
This U-Type bulkhead trim is engineered to establish a vertical upstand detail within metal suspended ceiling frameworks, accommodating plasterboard or MDF finishes. Purpose-built for professional ceiling tile installations, it ensures a sophisticated architectural appearance that meets exacting standards in commercial and institutional settings.
Specification
- Use with 12.5mm plasterboard.
- Supplied in standard 3000mm lengths.
-
Stock RAL colour white 9010.
- Durable powder coating finish.
- Extruded from architectural grade aluminium alloy to BS1474.
- Extruded from T6 internal grade aluminium.
- Other colors on request please email.
- Ceiling profile range
Ceiling Edge Trim Example
Below shows an example of how these ceiling upstand trims are used in situ, shown with the plasterboard in its vertical position.

Dimensions Guide

- Expert Advice
- Speedy Packing
- Same Day Dispatch
50 in stock
Regular price
£21.59 GBP
Regular price
Sale price
£21.59 GBP
Unit price
per
Shipping calculated at checkout.
Couldn't load pickup availability
