1
/
of
2
Share
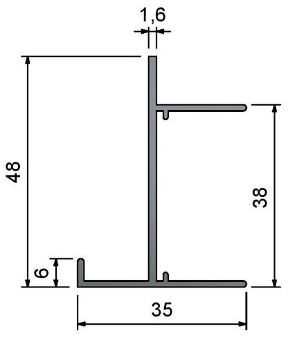
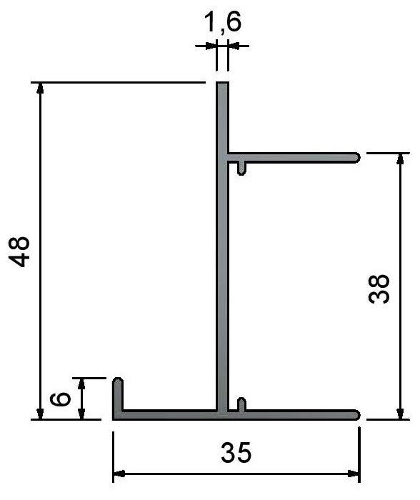
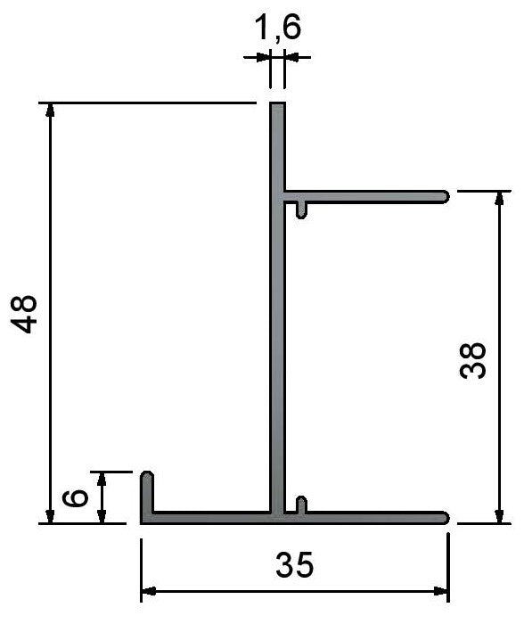
UC35-Type Bulkhead Ceiling Up Stand Trim
UC35-Type Bulkhead Ceiling Up Stand Trim
This U-Type bulkhead trim integrates seamlessly with metal suspended ceiling systems to form a precise vertical upstand junction. Compatible with both plasterboard and MDF substrates, it delivers the polished aesthetic required in high-specification commercial and institutional projects. Engineered for professional installation teams demanding superior architectural detailing.
Specification
- Use with 12.5mm plasterboard.
- Supplied in standard 3000mm lengths.
-
Stock RAL colour white 9010.
- Durable powder coating finish.
- Extruded from architectural grade aluminium alloy to BS1474.
- Extruded from T6 internal grade aluminium.
- Other colors on request please email.
- Ceiling profile range
Ceiling Edge Trim Example
Below shows an example of how these ceiling upstand trims are used in situ, shown with the plasterboard in its vertical position.

Dimensions Guide

- Expert Advice
- Speedy Packing
- Same Day Dispatch
50 in stock
Quantity
Regular price
£21.59
Regular price
Sale price
£21.59
Shipping calculated at checkout.
Couldn't load pickup availability
