1
/
of
11
Share
RD-Type Reveal Trims Bulk Pack
RD-Type Reveal Trims Bulk Pack
When paired with gypsum plasterboard wall, drylining Reveal & Skirting Trims can be utilized to achieve horizontal or vertical reveal shadow gap detailing. These reveal trims can be placed in various settings, such as suspended ceilings, door frames, floor skirting, window frames, and more, to create chic and sophisticated lighting designs.
Specification
- Suitable for thicker 15mm plasterboard drylining
- Supplied in standard 3000mm lengths
- Standard RAL colour of 9010
- Punched flange for easy fixing
- Extruded from T6 architectural grade aluminium alloy to BS1474
- Internal use only
- Wall reveal range
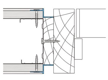
Reveal Trim Example
Below shown example used in steel stud and plasterboard, these trims are designed to be used with 15mm plasterboard due to it deeper dimensions.
Reveal Trims Dimensions
Red line - denotes desired shadow gap or reveal detailing desired dimensions.

- Expert Advice
- Speedy Packing
- Same Day Dispatch
100 in stock
Regular price
£199.75 GBP
Regular price
Sale price
£199.75 GBP
Unit price
/
per
Shipping calculated at checkout.
Couldn't load pickup availability










